Woonoppervlakte
Circa 104 m²
Perceeloppervlakte
Circa 229 m²
Bouwjaar
Gebouwd in 1996
Aantal kamers
4 kamers (2 slaapkamers)

Travertijndijk 12

4706 TS, Roosendaal (Noord-Brabant)

Wonen met sfeer én comfort aan de Travertijndijk 12! Welkom in Kortendijk, een geliefde wijk in Roosendaal waar rust, ruimte en gezelligheid samenkomen. Aan de Travertijndijk 12 vind je deze sfeervolle woning die direct een warm gevoel oproept. Met een gezellige woonkamer, een moderne open keuken en maar liefst 12 zonnepanelen, is dit een woning die je écht gezien moet hebben. Daarnaast geniet je van een zonnige tuin met overkapping en de woning beschikt over twee afgewerkte slaapkamers, met mogelijkheid tot een derde slaapkamer en een nette badkamer met zowel bad als douche. Alles wat je zoekt, in één verrassend compleet huis. Klinkt goed? Plan dan snel die bezichtiging in!

Entree:
Je parkeert de auto gemakkelijk voor de deur op je eigen oprit of in de straat. Je komt binnen via een mooie en verzorgde hal, die direct toegang geeft tot de woonkamer en open keuken.

Wonen & Koken:
De woonkamer is warm, licht en stijlvol afgewerkt. De houten vloer zorgt voor een gezellige sfeer, terwijl de strak gestucte wanden een moderne uitstraling geven. Dankzij het prettige lichtinval voelt de ruimte open en uitnodigend aan.
De keuken sluit hier naadloos op aan en is uitgevoerd in een moderne zwarte stijl. Voorzien van een ingebouwde koelkast en vaatwasser, is deze keuken klaar voor al jouw kookavonturen! De voormalige garage is deels omgetoverd tot een geluidsdichte kamer, ideaal als thuisstudio en/of werkkamer.

Slapen, Dromen & Douchen:
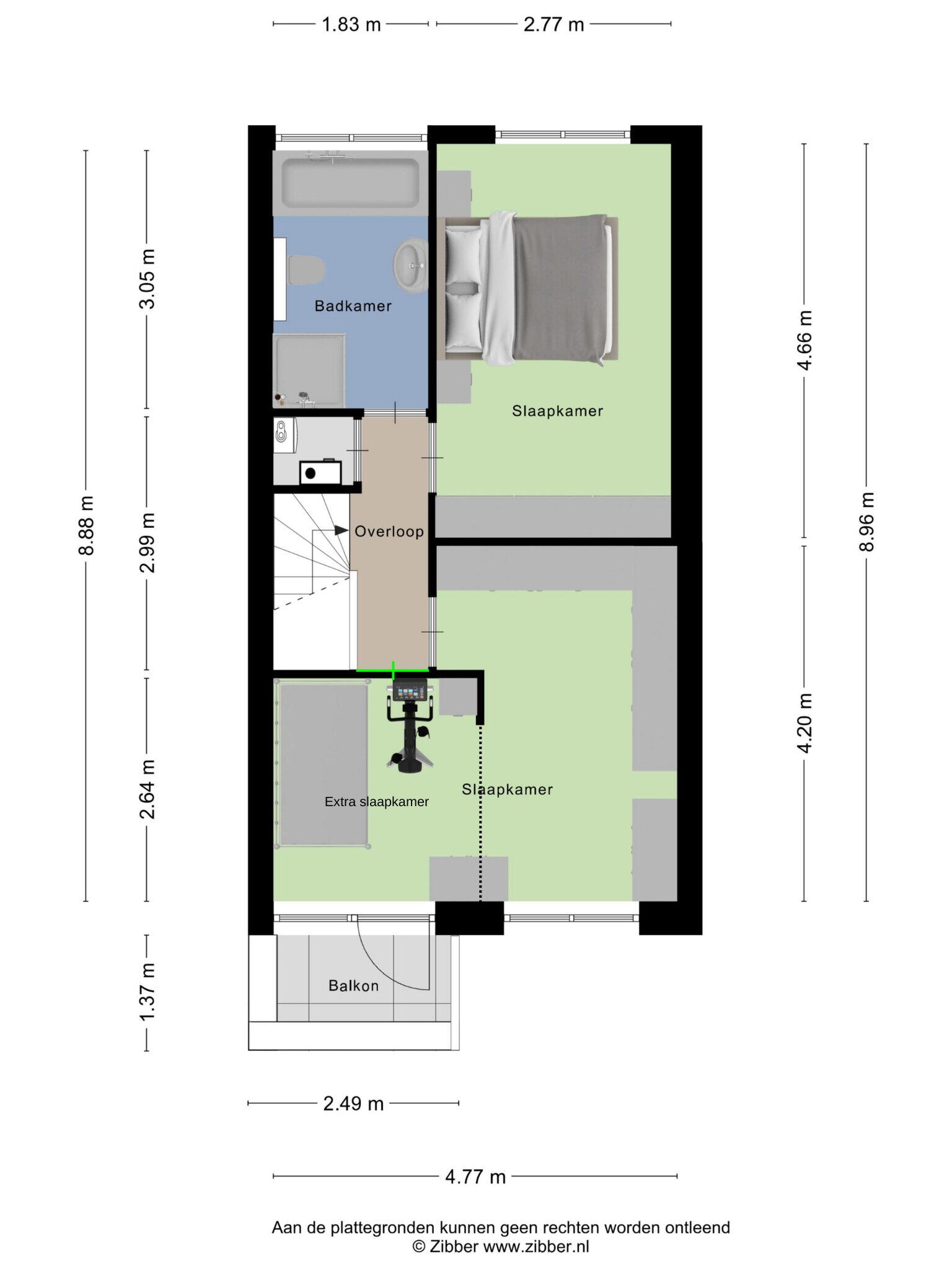
De woning beschikt over twee ruime slaapkamers, beide prachtig afgewerkt en rijk aan natuurlijk licht. Oorspronkelijk waren er drie slaapkamers, de tweede slaapkamer is dus met gemak weer om te toveren tot twee losse slaapkamers.
De badkamer is netjes en functioneel ingericht met een douchebak, ligbad, toilet en wastafel.

Tuinieren, Zonnen & Genieten:
Wat een fijne buitenruimte! De zonnige tuin op het zuiden is een echt pluspunt. Hier geniet je van privacy, rust en diverse knusse plekjes om lekker te zitten. De tuin is keurig aangelegd met een overkapping, schutting en een schuur, alles wat je nodig hebt voor het ultieme buitenleven!

Omgeving en Faciliteiten
De woning ligt in het populaire Kortendijk, een fijne en rustige wijk met veel groen en alle voorzieningen in de buurt. Denk aan supermarkten, scholen, sportverenigingen en openbaar vervoer. Ook het centrum van Roosendaal en uitvalswegen richting Bergen op Zoom of Breda zijn goed bereikbaar.

Toelichtingsclausule NEN2580:
De Meetinstructie is gebaseerd op de NEN2580. De Meetinstructie is bedoeld om een meer eenduidige manier van meten toe te passen voor het geven van een indicatie van de gebruiksoppervlakte. De Meetinstructie sluit verschillen in meetuitkomsten niet volledig uit, door bijvoorbeeld interpretatieverschillen, afrondingen of beperkingen bij het uitvoeren van de meting.

Plattegronden

Overdracht

Vraagprijs
€ 419.000 k.k.
Status
Verkocht
Aanvaarding
In overleg

Bouw

Object type
Eengezinswoning, geschakelde woning
Soort bouw
Bestaande bouw
Bouwjaar
1996
Soort dak
Lessenaardak

Oppervlakte en inhoud

Woonoppervlakte
104 m²
Perceeloppervlakte
229 m²
Inhoud
395 m³
Overige inpandige ruimte
7 m²
Externe bergruimte
5 m²
Gebouwgeb. buitenruimte
2 m²

Indeling

Aantal kamers
4 kamers (2 slaapkamers)
Aantal badkamers
1 badkamer
Badkamervoorzieningen
Ligbad, toilet, douche, wastafel
Aantal woonlagen
2 woonlagen
Voorzieningen
Mechanische ventilatie, zonnepanelen

Energie

Energielabel
A
Energielabel registratie
01-09-2025
Isolatie
Dakisolatie, muurisolatie, vloerisolatie, dubbel glas, hr glas
Verwarming
Cv-ketel
Warm water
Cv-ketel
Cv ketel
Vaillant vhr 30-34 gas gestookt uit 2017 (eigendom)

Buitenruimte

Ligging
In woonwijk
Balkon / dakterras
Balkon
Tuin
Achtertuin, voortuin

Bergruimte

Schuur / berging
Vrijstaande houten berging

Garage

Soort garage
Aangebouwd steen
Capaciteit
1 auto

Parkeergelegenheid

Soort parkeergelegenheid
Openbaar parkeren, op eigen terrein

Energieverbruik in Roosendaal

Energielabel deze woning

Energielabel A

Publicatie energielabel: 01-09-2025

Stroomverbruik per jaar

2790 kWh

(Gemiddelde tussenwoning in Roosendaal)

Gasverbruik per jaar

1080 m³

(Gemiddelde tussenwoning in Roosendaal)

* Cijfers zijn afkomstig van het CBS en bedoeld als indicatie en kunnen verschillen voor deze woning

Indicatie hypotheeklasten

Eigen inleg:
Spaargeld / overwaarde

Rente:
Laagste 10-jaars rente

Laagste 10-jaars rente

2,78% - Woonfonds Groen Woonge... - NHG


3,04% - Argenta Groen Hypothee... - 80%

Laagste 20-jaars rente

3,18% - Argenta Groen Hypothee... - NHG


3,39% - Argenta Groen Hypothee... - 80%

Laagste 30-jaars rente

3,35% - Argenta Groen Hypothee... - NHG


3,56% - Argenta Groen Hypothee... - 80%


Hypotheek:

Bruto maandlasten: € 0 p/m

Netto maandlasten: € 0 p/m

Hoe berekenen we dit?

Het rentepercentage is gebaseerd op de laagste 10 jaars vaste rente voor één hypotheekdeel. De vermelde rente (3.04% zonder NHG) is gecontroleerd op 24-11-2025. Deze berekening is gebaseerd op een annuïteitenhypotheek die volledig wordt afgelost, waarbij de maandlasten gedurende de gehele looptijd gelijk blijven. De werkelijke rente en netto maandlasten kunnen variëren, afhankelijk van uw persoonlijke situatie en de hypotheekverstrekker. Raadpleeg een financieel adviseur voor een nauwkeurige berekening en advies. Aan deze berekening kunnen geen rechten worden ontleend; het dient enkel als indicatie.

Documentatie

Zonnegrenzen bekijken

Op de kaart

Inwoners in Roosendaal

Cijfers voor postcodegebied 4706

Totaal aantal inwoners
11315 inwoners
Mannen
49%
Vrouwen
51%

Inwoners in Roosendaal

Cijfers voor postcodegebied 4706

tot 15 jaar
16%
15 tot 25 jaar
11%
25 tot 35 jaar
20%
45 tot 65 jaar
30%
65 en ouder
22%

Huishoudens in Roosendaal

Cijfers voor postcodegebied 4706

Eenpersoons zonder kinderen
26%
Meerpersoons zonder kinderen
35%
Huishoudens zonder kinderen
61%

Huishoudens in Roosendaal

Cijfers voor postcodegebied 4706

Huishoudens met één kind
8%
Huishoudens met meerdere kinderen
31%
Huishoudens met kinderen
39%

Woningen in Roosendaal

Cijfers voor postcodegebied 4706

Woningen voor 1945
2%
Woningen tussen 1945 en 1965
1%
Woningen tussen 1965 en 1975
6%
Woningen tussen 1975 en 1985
68%
Woningen tussen 1985 en 1995
4%

Woningen in Roosendaal

Cijfers voor postcodegebied 4706

Woningen tussen 1995 en 2005
9%
Woningen tussen 2005 en 2015
10%
Woningen na 2015
1%
Huurwoningen
30%
Koopwoningen
70%

Overige in Roosendaal

Cijfers voor postcodegebied 4706

Gemiddelde WOZ waarde
€ 263.000,-
Personen onder de 65 met uitkering
8%

Overige in Roosendaal

Cijfers voor postcodegebied 4706

Adressen per km²
1326
Stedelijkheid (schaal 1 op 5)
60%
Postcode kaart 4706 Gemeente kaart roosendaal

Indien u vragen heeft of u wilt een bezichtiging inplannen, dan kunt u gebruik maken van het formulier hiernaast. Er zal daarna op korte termijn contact met u worden opgenomen.

Vakidioten met een passie voor vastgoed

Bij C&R Makelaars draait alles om jou en je woning. Wij zijn een frisse, energieke generatie makelaars met een passie voor mensen en de woningmarkt.

We geloven in een persoonlijke aanpak zonder poespas: eerlijk, transparant en altijd met een flinke dosis enthousiasme. Het verkopen van je huis is een belangrijke stap, en daarom begeleiden we je op een manier die bij jou past, van begin tot eind.

Met onze diepgaande kennis van de lokale markt geven we je waardevol advies dat perfect aansluit bij jouw situatie én dat van potentiële kopers.

Daarnaast staat ons creatieve team van vastgoedmarketeers klaar om jouw woning in de schijnwerpers te zetten. Met slimme en doordachte strategieën zorgen we ervoor dat je huis opvalt en het maximale resultaat behaalt.

Jouw tevredenheid is ons einddoel. We zetten alles op alles om je verwachtingen te overtreffen. Nieuwsgierig naar ons team? Klik op de button hieronder en maak kennis met ons!

Vakidioten met een passie voor vastgoed
Reviews C&R Makelaars

Travertijndijk 12, Roosendaal

€ 419.000 k.k. - Verkocht

Helaas, deze woning is verkocht!

Net te laat, deze woning is al verkocht. Laat een zoekopdracht bij ons achter zodat wij u direct kunnen helpen wanneer er nieuw aanbod beschikbaar komt.